
ATLAS
Etablissement Chossière

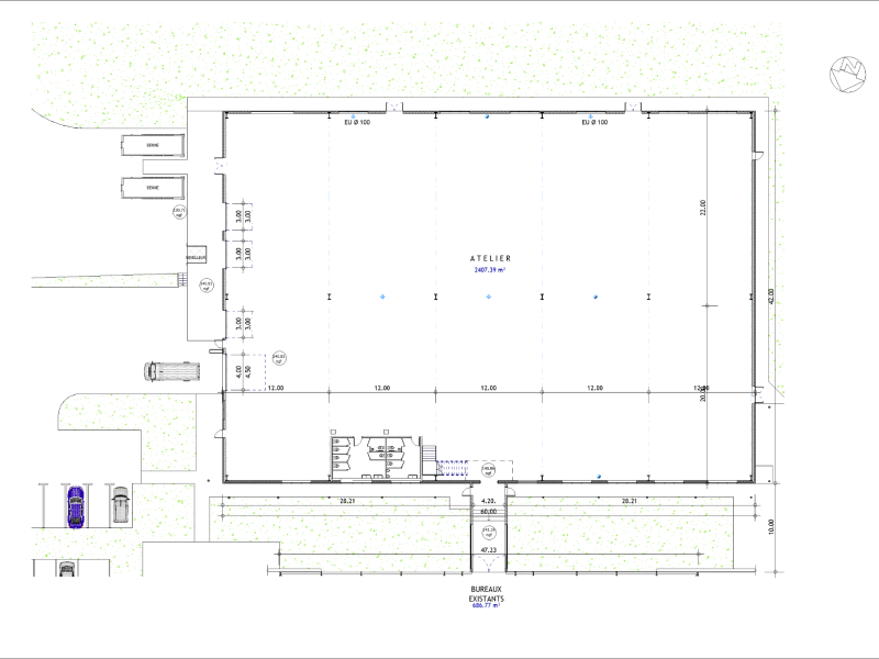
Société Plastella
Bonnaire traiteur
BestDrive Evreux
Maître d'Ouvrage : SARL 123 Rue de Cocherel
Programme
- 2 000 m² de bureaux (TCI, FITECO, CIC, ....)
- 800 m² de restaurants (Au Bureau et Del Arte)
- 2800 m² de commerce (Grand Frais et Biocoop)
Maître d'Ouvrage : Société LEGRAND / SGM
Société spécialisée dans les traitements par impact, sablage, grenaillage ou microbillage depuis 1936, installée à Fontenay-sous-Bois.
Extension à usage d'atelier.
Dimensions du bâtiment : 246 m² sur sur 58 mètres de long !
Livraison mi 2015.
Mission Permis de Construite
Contractant général : TCI.
Maître d'ouvrage : Best Drive
Programme : Bâtiment neuf
Bureaux 84 m²
Atelier 417 m²
Entrepôt 259 m²
Livraison 2015
Mission Permis de Construire
Contractant Général : TCI
Maître d'ouvrage : Etablissement Chossière
Programme : Bâtiment neuf
Bureaux 438 m²
Atelier 508 m²
Entrepôt 1 952 m²
Livraison 2014
Mission Permis de Construire
Contractant Général : TCI
Maître d'ouvrage : Société CORREGES
Programme : Extension à usage d'atelier 2 500 m²
Livraison 2014
Mission Permis de Construire
Contractant Général : TCI
Maître d'ouvrage : Société EMCI
Programme : Rénovation des façades des bureaux existants
Construction de Bureaux 160 m² et d'ateliers 1 000 m²
Livraison 2014
Mission Permis de Construire
Contractant Général : TCI
Maître d'Ouvrage : SCI AT 76
Programme : Bureaux 201 m² et Atelier 1 800 m²
Livraison juillet 2011
Mission : Permis de Construire
Contractant général : TCI
Maître d'ouvrage : SCI VI Développement
Programme : atelier 840 m²
Livraison Septembre 2005
Mission : Permis de Construire
Contractant général : TCI
Maître d'ouvrage : Les Papillons Blanc de l'Eure
Bâtiment situé dans la ZAC de la Rougemare.
Programme :
Bureaux : 1 466 m², Ateliers : 1 903 m² et entrepôt : 1 238 m²
Total : 4 607 m²
Livraison Octobre 2012
Contractant général : TCI
Mission : Permis de Construire
Extension R+1 à usage de bureaux et d'atelier à Domont
et modofication des VRD
Bureaux : 345 m²
Atelier verre et montures : 135
Livraison mi 2011
Mission : Permis de Construire
Contractant général : Treuil Constructrion Ingénierie
Bâtiment situé dans la ZAC de la Vente Olivier à Saint-Etienne-du-Rouvray.
Programme :
Bureaux et salle de réception évènement 427 m²
Cuisine : 501 m²
Stockage : 396 m²
Total : 1 324 m²
Livraison Décembre 2010
Contractant général : TCI
Mission : Permis de Construire
Construction d'un bâtiment de bureaux et d'atelier pour la fabrication de machines pour l'industrie agro-alimentaire à Coulommiers (77)
Maitre d'ouvrage : Société Eurocri
Programme : Bureaux : 364 m², Atelier : 1 176 m²,
Livraison début 2011
Mission : Permis de Construire
Contractant général : Treuil Constructrion Ingénierie
Bâtiment de stockage, extension de 1 342 m²
Mission : Permis de Construire
Livraison fin 2007
Contarctant général : Treuil construction ingénierie
Maitre d'ouvrage : Le Touquet Syndicate Ld
Maître d'oeuvre : G. Camel & B. AGIER
Projet pour un nouveau Club House pour le golf existant
Maitre d'ouvrage : SODEARIF
Maitre d'oeuvre : G. Gobert, B. Agier Collaboratrice
Base logistique comprenant deux bâtiments
de 31 600 m² et 42 000 m² réalisés en 2 tranches
A Saint-Ouen-l'Aumône
2002 et 2004
Implantation d'un nouveau magasin dans la ZAC des Livraindrières.
Le programme comprend :
- Bureaux et locaux sociaux : 240 m²
- Magasin : 223 m²
- Stockage : 1 484 m²
Livraison Novembre 2007
Mission : Permis de Construire
Maitre d'ouvrage : S.C.I. La Grande Vigne.
Bureaux et Atelier de mécanique de haute précision
Surfaces : bureaux 350 m² et atelier 1 600 m²
Contractant général : Treuil Construction Ingénierie
Mission : Permis de Construire
Maitre d'ouvrage : SCI GUYAUR
Programme : Bâtiment à usage de bureaux et d'atelier pour la fabrication d'instrumentation scientifique et technique
Atelier à RdCh : 895 m², Bureaux R+1 : 470 m²
Surface totale : 1 365 m²
Contractant général : Treuil Construction Ingénierie
Livraison Octobre 2005
Mission : Permis de Construire
Maitre d'ouvrage : Holding MC Participations
Programme : Bureaux R+1 : 319 m², Atelier : 1 900 m², Locaux Sociaux : 109 m²
Surface totale : 2 329 m²
A Pavillon-sous Bois
Livraison fin 2009
Mission : Permis de Construire
Contractant général : Treuil Construction Ingénierie
Bureaux, atelier et entrepôt pour Expresso Assistance, à Gennevilliers (92)
Abrite une filliale des Cafés Richard qui entretient les machines à cafés louées aux professionnels (bar, brasseries, ...)
Programme : Bureaux : 357 m² et Locaux Sociaux : 243 m²
Atelier et Stockage : 1 588 m²
Contractant général : Treuil Construction Ingénierie
Livraison Mars 2009 - Mission : Permis de Construire
Nous utilisons des cookies pour vous garantir la meilleure expérience sur notre site. En naviguant sur notre site vous acceptez l'installation et l'utilisation des cookies sur votre ordinateur.